Aménagement extérieur et rénovation intérieure – Maison plain pied

Aménagement extérieur et rénovation intérieure – Maison plain pied
Réhabilitation totale avec redistribution des espaces et aménagements extérieurs

Présentation du projet

Ce projet concerne la modélisation complète d’une maison construite en 2002, avec pour objectif de repenser à la fois les aménagements extérieurs et la rénovation intérieure.

Chaque projet débute par une phase d’écoute et d’analyse. Ici, l’enjeu était double : moderniser l’intérieur pour l’adapter aux usages actuels, tout en redonnant une véritable cohérence aux espaces extérieurs. L’idée n’était pas simplement de transformer, mais de révéler le potentiel existant.

La modélisation a été réalisée sous Revit, dans une logique BIM rigoureuse. Ce travail a permis de structurer précisément les volumes, d’optimiser l’organisation des espaces et d’anticiper les contraintes techniques. La maquette numérique devient alors un véritable outil d’aide à la décision : elle permet de tester différentes configurations, d’affiner les circulations et d’assurer une cohérence globale entre intérieur et extérieur.

La mise en condition sous Twinmotion apporte une dimension immersive au projet. Elle permet de percevoir l’ambiance des futurs aménagements, la relation entre la maison et son jardin, l’impact des matériaux, ainsi que les jeux de lumière naturelle selon les différentes orientations. Ces visualisations ne sont pas de simples rendus esthétiques : elles servent à projeter concrètement le client dans son futur cadre de vie.

Ce projet illustre ma manière de travailler en tant que dessinateur indépendant : allier précision technique, maîtrise des outils numériques et sensibilité architecturale, afin de proposer des solutions claires, cohérentes et adaptées aux besoins réels.

Livrables du projet

  • Modélisation BIM complète sous Revit
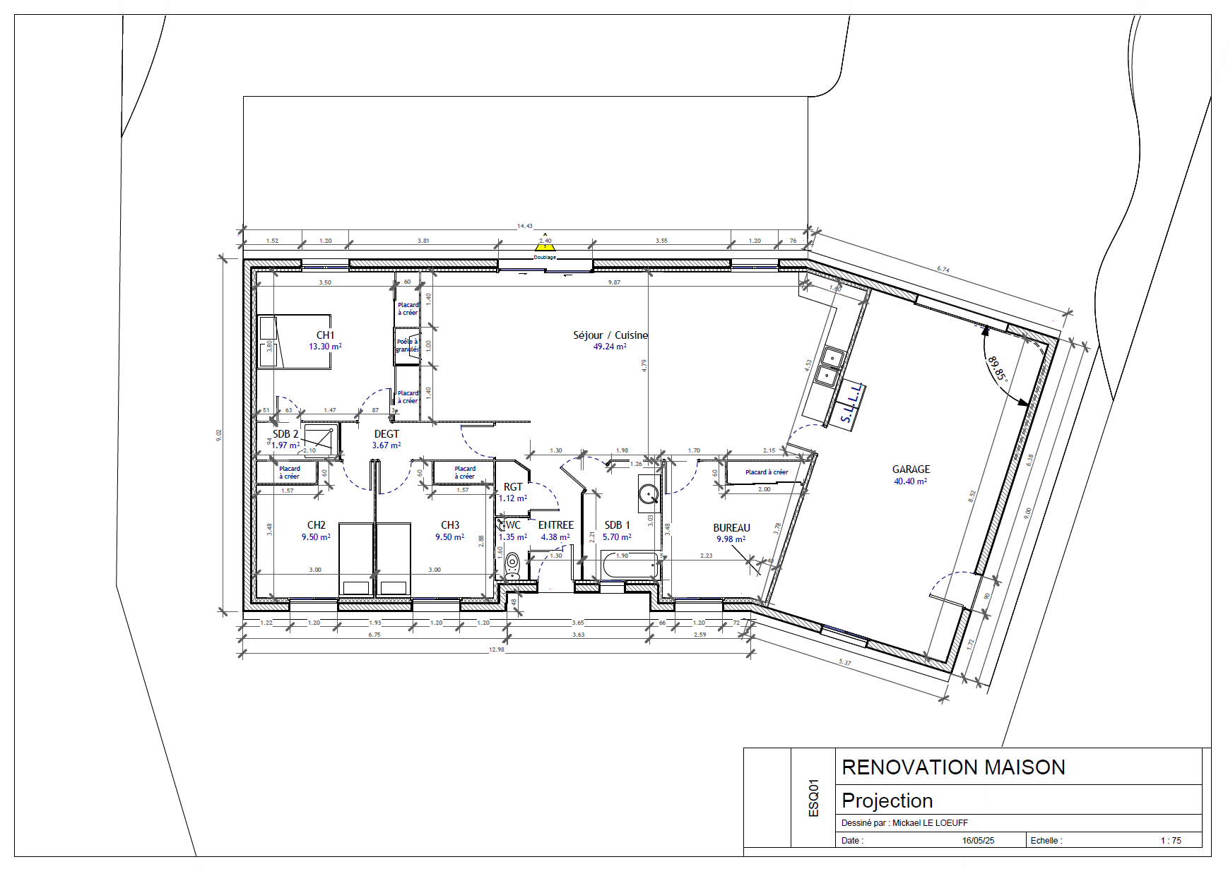
  • Plans d’aménagement (existant / projeté)
  • Modélisation des aménagements extérieurs
  • Vues 3D et perspectives photoréalistes sous Twinmotion

Galerie photos

Un projet similaire ?

Demandez votre devis gratuit sous 48h

Démarrer mon projet