Dossier de permis de construire – Maison contemporaine

Dossier de permis de construire – Maison contemporaine
Réalisation de toutes les pièces nécessaires au dépôt d’un permis de construire.

Présentation du projet

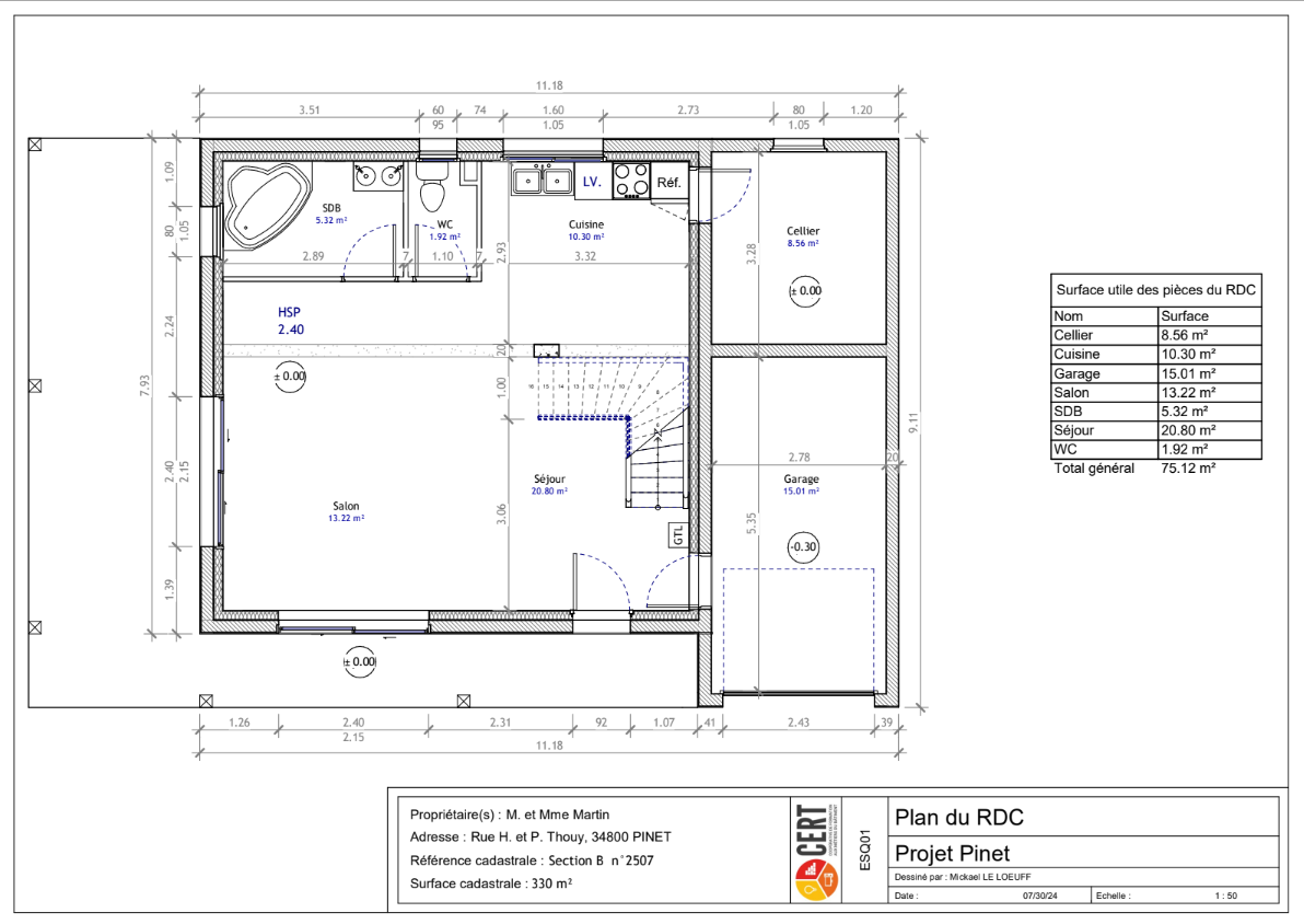
Ce projet concerne la conception complète des pièces PCMI nécessaires au dépôt d’un permis de construire pour une maison contemporaine de 102m².

L’objectif était d’accompagner le client dans la constitution d’un dossier clair, rigoureux et conforme aux exigences administratives. Chaque document a été conçu avec précision afin de faciliter l’instruction du permis et d’assurer une parfaite compréhension du projet par les services d’urbanisme.

La modélisation a été réalisée sous Revit, dans une logique BIM permettant de garantir la cohérence entre les plans, les façades, les coupes et l’implantation sur le terrain. Cette méthode de travail offre une grande fiabilité technique et permet d’anticiper les éventuelles contraintes réglementaires ou constructives dès la phase de conception.

Au-delà des pièces réglementaires, des dessins de détails ont également été réalisés à la demande du client. Ces éléments complémentaires permettent d’affiner certains choix techniques et d’apporter davantage de précision pour la phase travaux.

Ce projet illustre ma capacité à produire un dossier de permis complet, structuré et conforme, tout en assurant une conception maîtrisée et techniquement solide grâce aux outils numériques.

Livrables du projet

  • Ensemble des pièces PCMI pour permis de construire
  • Plans, coupes et façades réglementaires
  • Plan de situation et plan de masse
  • Modélisation BIM sous Revit

Galerie photos

Un projet similaire ?

Demandez votre devis gratuit sous 48h

Démarrer mon projet